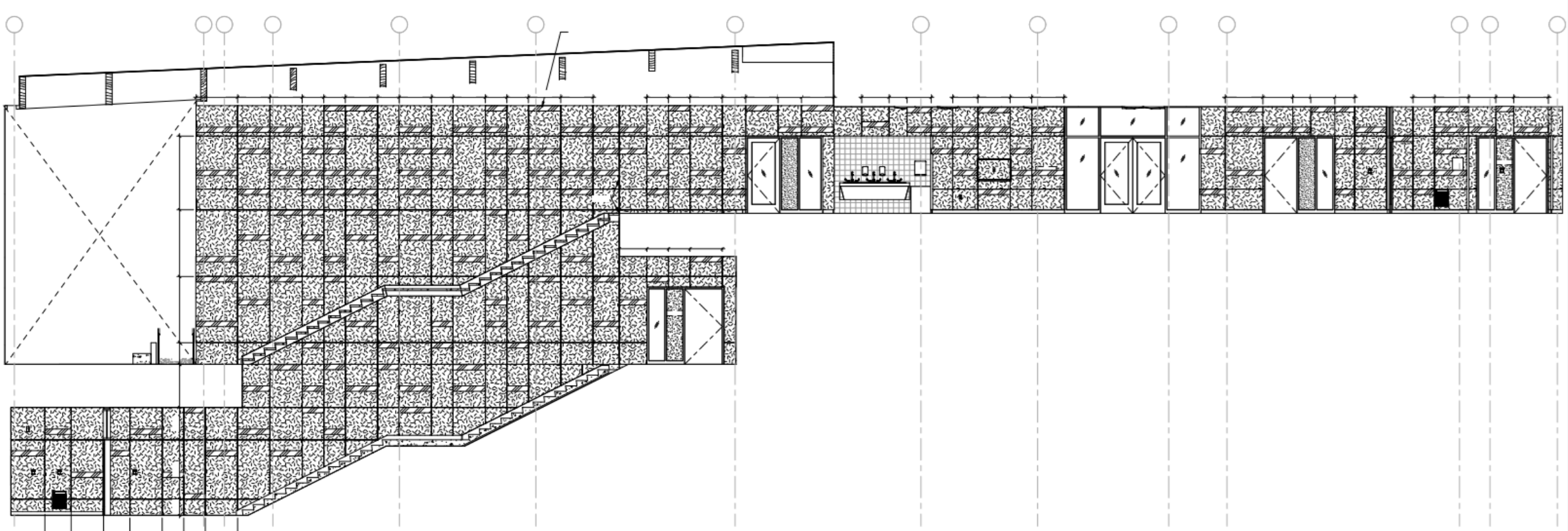
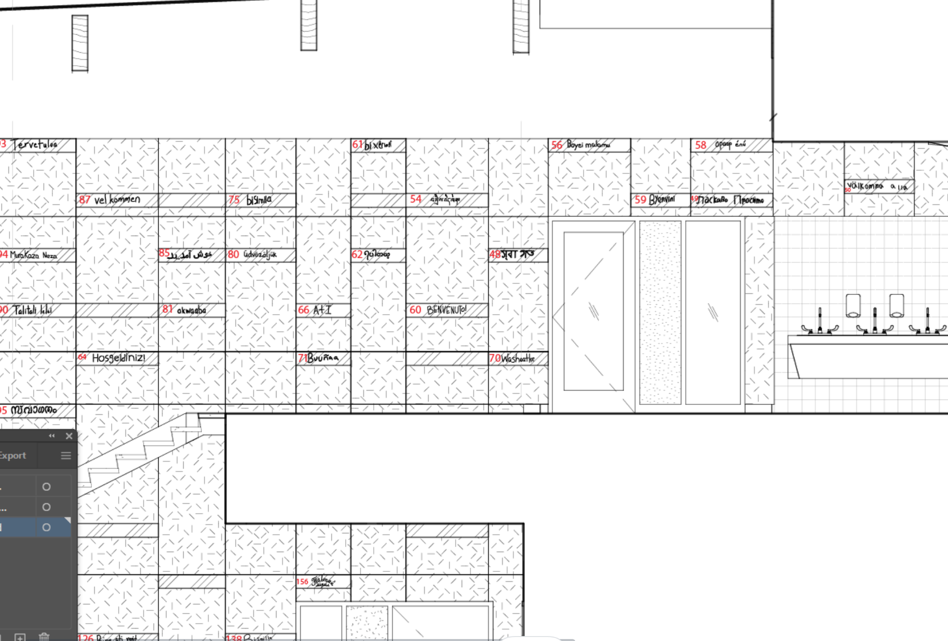
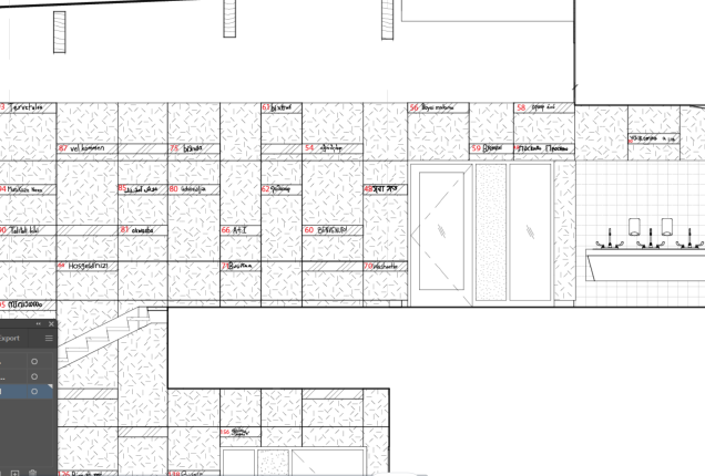
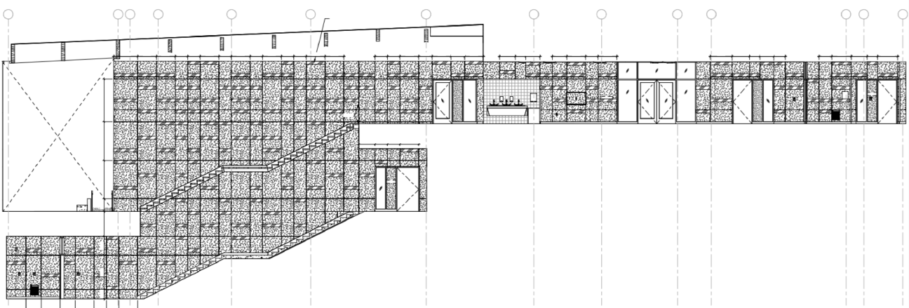
Organizing signs on elevation

In the next portion of the project, I arranged the language tags throughout the installation, putting more of the commonly spoken languages near the front of the entryway.

images/1 wall elevation.png
images/2.png
images/3.png