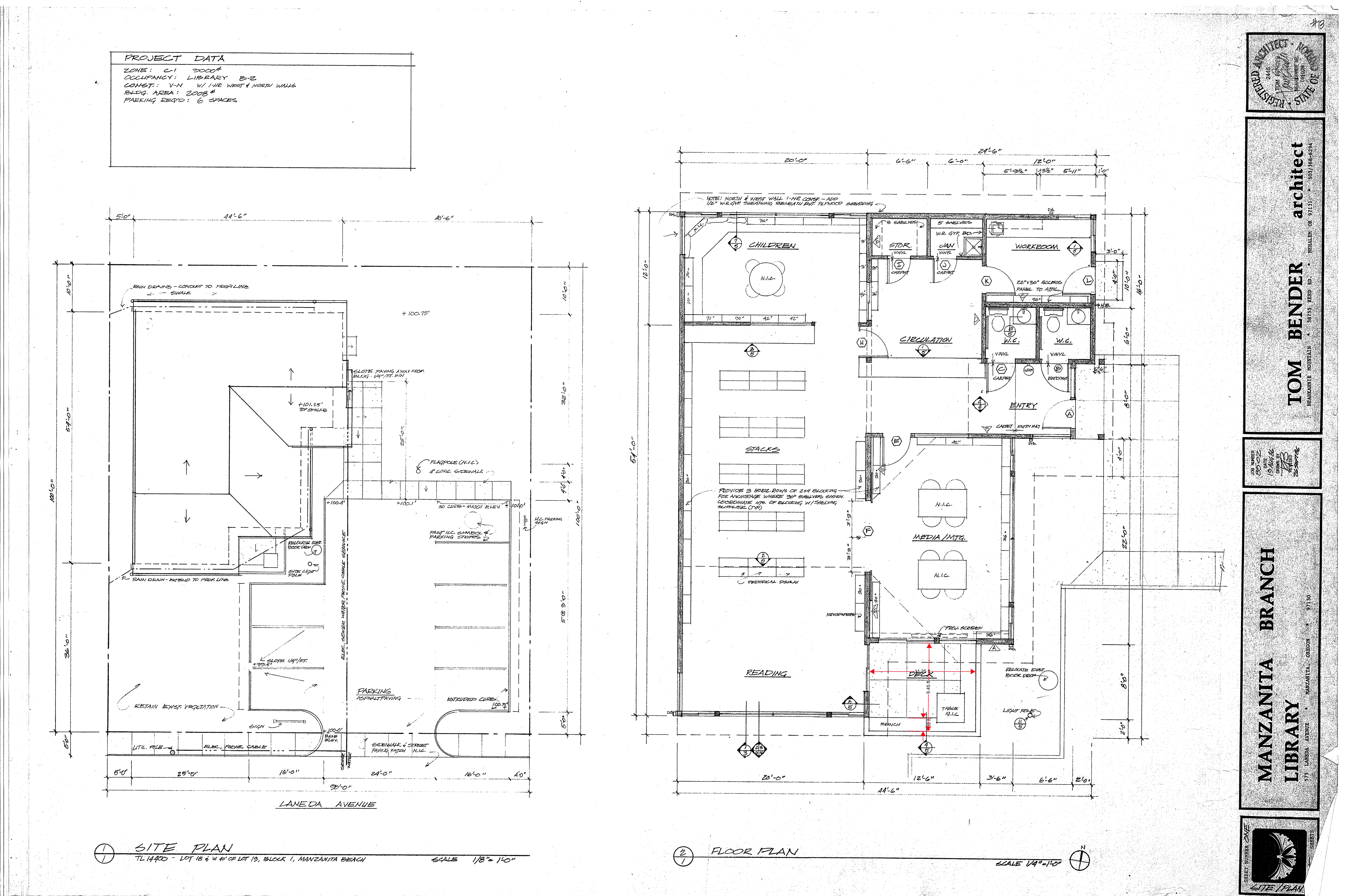
Understanding the plans
When this project began, I needed plans to accurately transform the library into a digital model. My family got in touch with the architect’s family to secure a copy of the plans for this building, which was exciting. The exact measurements from the original architect made it much easier to model a faithful representation of this library.





